Privacy Statement (EU)
The offered villa is part of a new small project of luxury stylish villas with fantastic panoramic views to the sea and the entire coastline all the way to Paphos. At this, without a doubt, the most beautiful place of Peiya, you can fully enjoy absolute silence, sunset views, privacy, and at the same time be a 10-minute drive from the nearest TLC English school and the beautiful sandy beaches of Coral Bay. Due to its location on a hill, the hot summer time is much easier to endure here, since the humidity level is significantly lower than directly near the sea.
This is a villa thought out to the smallest detail, during the construction and decoration of which attention is paid to literally every detail to make your dream home look perfect, and large panoramic windows will give a feeling of soaring over the whole of Peiya.
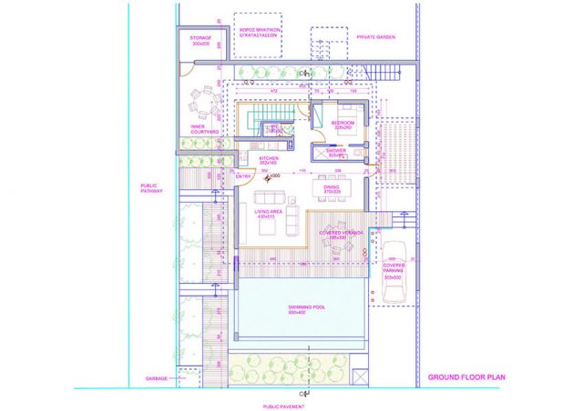
The ground floor of the house includes a spacious living room, dining room with open plan kitchen, guest bathroom. On the upper floor there are three bedrooms (master one en-suite) and a family bathroom. All three bedrooms have access to a large covered balcony overlooking the sea.
Tombs of The Kings Ave 8, 8046, Pafos, Cyprus

















dionisii77